Condominium for Rent - The Clift - D01 - Marina - The Clift 21 Mccallum Street Singapore - 4 900 SGD - 1104830

4 900 SGD

Normal
NG CHEE WEE
NG CHEE WEE
Property Agent

Verified number: +6596989563

https://agent.sg/R059009Z
Write message to Steven Ng

+65

Share this listing
Description

Located at the heart of Singapore’s Central Business District, The Clift places the modern professional right in the middle of the city’s buzz.

Enjoy a wide variety of entertainment hotspots and dining options within walking distance; from conserved shophouses and historic buildings to artisan cafés selling local delights, Telok Ayer has fast become one of the freshest destinations for F&B in the city.

* Units with unblock view are available
* Easy access to office in CBD.
* Walking distance to MRT
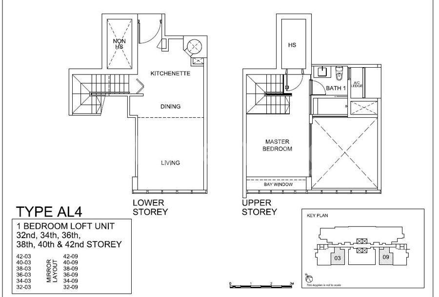
* Very high ceiling, unique and exclusive.

Estate details

Rent

The Clift

The Clift 21 Mccallum Street, Singapore0

4 900 SGD

1

1

829 sqft

1104830

Facilities
Key features:
  • City View
  • High Floor
  • Renovated
  • Fibre Ready
  • High Ceiling
  • Loft
Photos of this Condo
Location of this property
More estate type list in D01 - Marina