Condominium for Rent - G Residences - D15 - Joo Chiat - G Residences 50 Lorong G Telok Kurau Singapore - 2 000 SGD - 965004

2 000 SGD

Normal
YAP SOONG YOONG
YAP SOONG YOONG
Property Agent

Verified number: +6583837839

https://agent.sg/R041326J
Write message to

+65

Share this listing
Description

**** New and Beautiful 5 bedroom + Study Dual Key Penthouse for Rent @ Telok Kurau!*******

Just TOP!

Viewing by Appt only!
Motivated Seller!

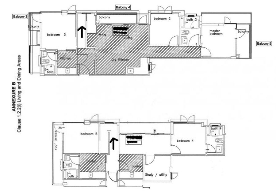
★Very Rare Penthouse! Existing Triple key layout! Good rental opportunity!

First floor:
★One bedroom ensuite with private kitchen.
★2 Bedrooms with common toilet, comes up fully furnished kitchen, living area and balcony.

Second floor:
★One Bedroom ensuite with private kitchen.
★One spacious master bedroom ensuite, with a study room and family area.

★Freehold and Brand New

★Panorama Landed view

★Mins walk to Kembangan MRT

★This Condominium/Apartment is accessible through the nearest train stations such as Kembangan (EW6), Eunos (EW7), and Marine Terrace MRT (TE27) Thomson-East Coast Line Due 2023.

★The nearest primary schools are St. Stephen's School, Eunos Primary School, and Chij (katong) Primary.

★This property is close to amenities like NTUC FAIRPRICE (LENGKONG TIGA), NTUC FAIRPRICE (EUNOS CRESCENT), and NTUC FAIRPRICE (JOO CHIAT COMPLEX). The closest shopping malls are JOO CHIAT COMPLEX, 112 KATONG, and KATONG V.

Call Leonard @ ***** for viewing now!

Estate details

Rent

G Residences

G Residences 50 Lorong G Telok Kurau, Singapore0

2 000 SGD

2

1

500 sqft

965004

Photos of this Condo
Location of this property
More estate type list in D15 - Joo Chiat