Condominium for Rent - Altez - D02 - Tanjong Pagar - Altez 16 Enggor Street Singapore - 7 800 SGD - 1026146

7 800 SGD

Normal
TEY CHUEE HONG
TEY CHUEE HONG
Property Agent

Verified number: +6596703898

https://agent.sg/R026778G
Write message to

+65

Share this listing
Description

Several Units Available.Do contact for more information.
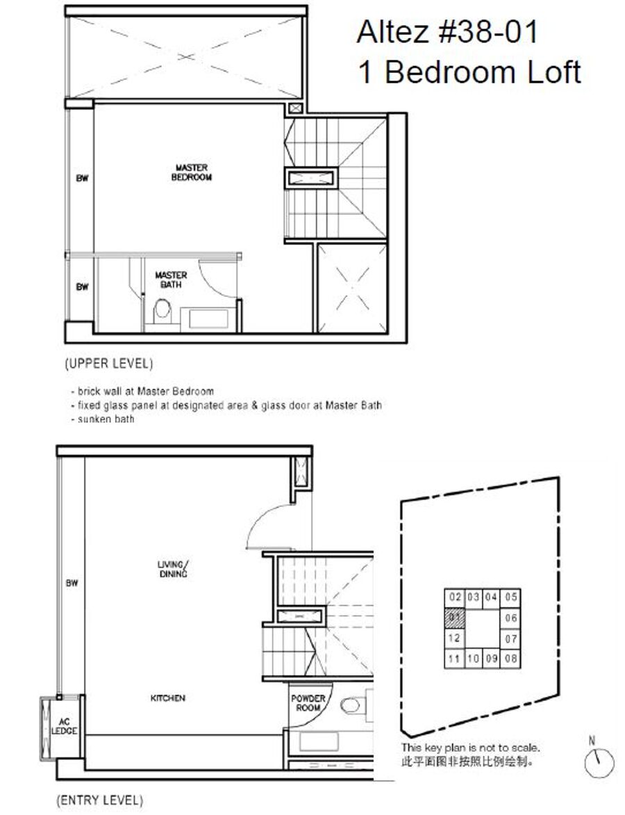
-1Br to 4Br available.
1) 3Min walk to Tanjong Pagar MRT
2) Very near to 100am Mall and Icon Village

Estate details

Rent

Altez

Altez 16 Enggor Street, Singapore0

7 800 SGD

1

1

840 sqft

1026146

Photos of this Condo
Location of this property
More estate type list in D02 - Tanjong Pagar