Condominium for Rent - The Foliage - D05 - Buona Vista - Pasir Panjang Road - 3 450 SGD - 83377

3 450 SGD

Starting from
LIM CHOON WEI
LIM CHOON WEI
Property Agent

Verified number: +6590990090

https://agent.sg/R028074J
Write message to

+65

Share this listing
Description

The Foliage

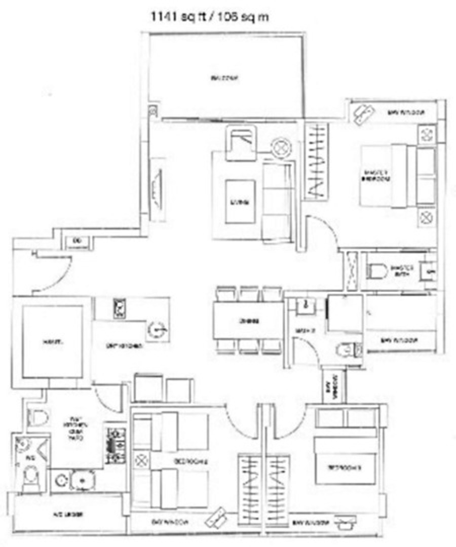
THE FOLIAGE 3 BEDROOM FOR RENT!!!

-Starting from $3450
-Near to Haw Par Villa MRT
-Spacious
-Quiet Environment
-Available NOW!!!!

Call ***** for an appointment to view!!!!

NOT TO BE MISSED!!!!

Alex Lim
HP: *****
Office: *****
Associate Division Director
ERA Realty Network Pte Ltd

Estate details

Rent

The Foliage

Pasir Panjang Road370

3 450 SGD

Starting from

3

0

Condominium

1173 sqft

2

83377

Freehold

Location of this property
More estate type list in D05 - Buona Vista